Подъемник П178Д-03А
Электромеханический
перейти к ЦЕНАМ
Назначение:
- предназначен для подъема и удержания автомобилей при выполнении работ по техническому обслуживанию и ремонту
Тип:
- стационарный;
- 4-стоечный;
- винтовой;
- клиноременная передача;
- синхронизация цепью
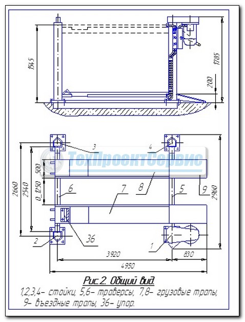
ТЕХНИЧЕСКИЕ ХАРАКТЕРИСТИКИ
| Грузоподъемность, кг |
3500 |
| Высота подъема максимальная, мм |
1545 |
| Высота въезда минимальная, мм |
200 |
| Ход подъема максимальный, мм |
1345 |
| Время подъема, сек не более |
46±2 |
| Время опускания, сек не более |
45±2 |
| Эл. двигатель:
мощность, кВт напряжение, В частота тока, Гц частота вращения, об/мин |
3,0 380 ~50 1500 |
| Расстояние между стойками в свету, мм |
2428±2 |
| Габаритные размеры (длина × ширина × высота) в сборе, мм |
4950×2960×1785 |
| Масса (нетто/брутто), кг не более |
805/875 |
| Габаритные размеры упаковки: длина × ширина × высота, мм |
4120х1095х555 |
- Предусмотрена установка тест системы сход-развала для легковых автомобилей
См. также:
